Rua Hungria
Informações/Curiosidades sobre o imóvel:
Idade estimada da edificação: entre 20 anos
Autor do projeto: arquiteto Sergio Assumpção
O Paddock I está localizado na Rua Hungria, 514, na região Faria Lima da cidade de São Paulo - SP. Além da excelente localização, com frente para a Marginal do Rio Pinheiros, o edifício se destaca pela vista privilegiada ao Jockey Clube de São Paulo. Construído há 20 anos, o edifício possui especificações técnicas elevadas e boa imagem corporativa. O edifício conta com um total de 12 andares, com lajes a partir de 294.4800, e oferece 3 elevadores sociais.
Quando foi realizado:
Setembro/2024
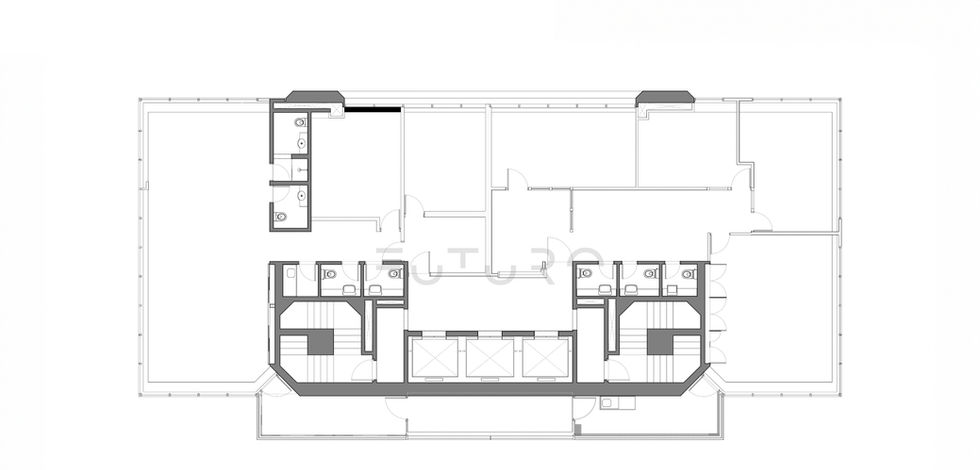
Área levantada:
357,57m²
Qtos dias em campo:
1 dia
Escopo do levantamento:
Arquitetura, Forro e Projeções, Climatização e Exaustão







